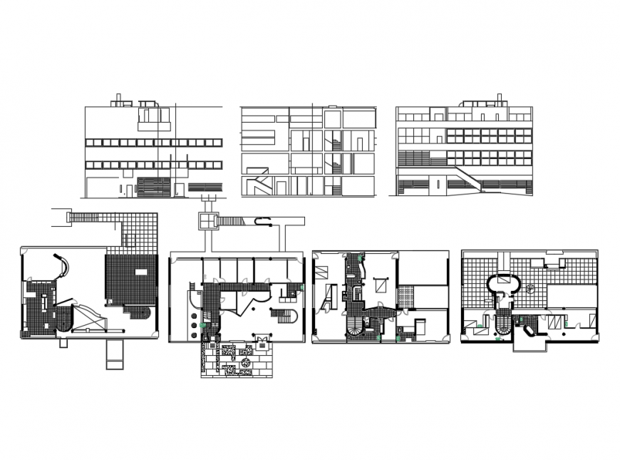
Stein house elevation, section and floor plan auto-cad details dwg file
Description
Stein house elevation, section and floor plan auto-cad details that includes a detailed view of flooring view, doors and windows view, staircase sectional details, balcony view, wall sections and dimensions details with main entry house door, drawing room, living room, family hall, kitchen, dining area, indoor staircases, laundry area, balcony, bedroom, master bedroom, toilets and bathroom, indoor doors, furniture details and much more of house project.
Uploaded by:
Eiz
Luna

