Commerce building detail layout autocad file
Description
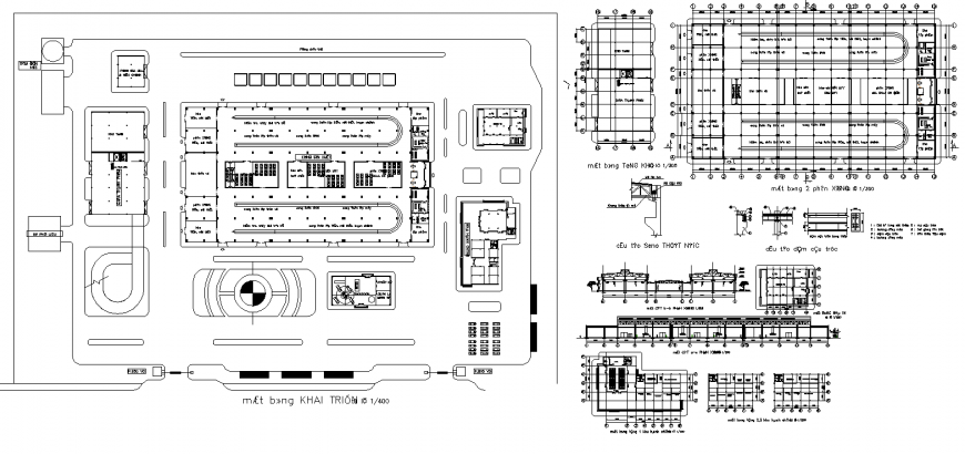
Commerce building detail layout autocad file, plan view detail, wall and flooring detail, boundary detail, dimension detail, parking space detail, furniture detail, door and window detail, numbering detail, hidden line detail, steel frame detail, cut out detail, column detail, struts detail, RCC structure, specification detail, scale detail, landscaping trees detail, roofing detail, section line detail, column detail, vechicle detail, etc.
Uploaded by:
Eiz
Luna

