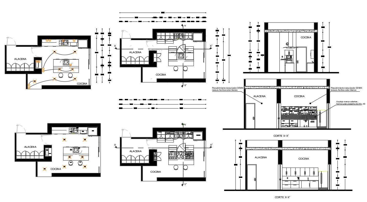
Kitchen Layout plan and Section With DWG File
Description
Kitchen Layout plan and Section With DWG File.This Shows Kitchen Layout plan and Section Acrylic Coating texture textured white Cemix, vinilica green paint marks comes ,Tile brand Corker,cube shape pistachio Kitchen design download file,
Uploaded by:
helly
panchal

