Plan and elevation back office detail autocad file
Description
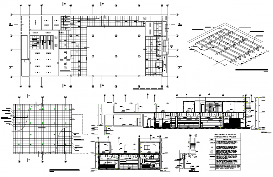
Plan and elevation back office detail autocad file, centre lien detail, naming detail, dimension detail, front elevation detail, side elevation detail, isometric slab detail, table specification detail, hidden lien detail, numbering detail, hatching detail, furniture detail in door, window, cub board and table detail, not to scale detail, flooring detail, brick wall detail, etc.
Uploaded by:
Eiz
Luna

