Wooden Bedroom Wardrobe CAD Drawing DWG Elevation Section Plan
Description
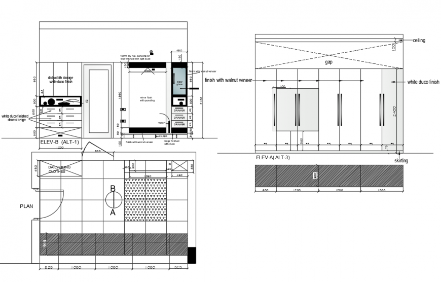
This DWG CAD drawing provides a comprehensive wooden bedroom wardrobe design with elevation, section, and plan views. It includes accurate measurements, cabinet layouts, shelves, drawers, hanging spaces, and material finishes. Ideal for architects, interior designers, and furniture planners, the file helps in precise space planning and ensures functional, stylish, and visually appealing wardrobe designs. Suitable for both residential and commercial projects, it serves as a complete reference for interior design, furniture installation, and detailed wardrobe construction.
Uploaded by:
Eiz
Luna

