City auditorium area floor plan with elevation dwg file
Description
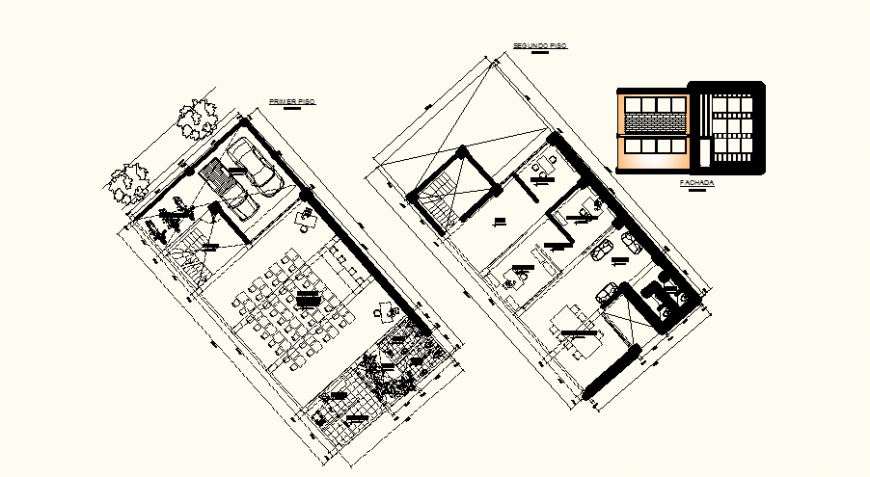
City auditorium area floor plan with elevation dwg file in plan with detail of area and detail of wall and area distribution with tree and parking area and detail of auditorium with washing area and design with necessary dimensional area with elevation in design.
Uploaded by:
Eiz
Luna

