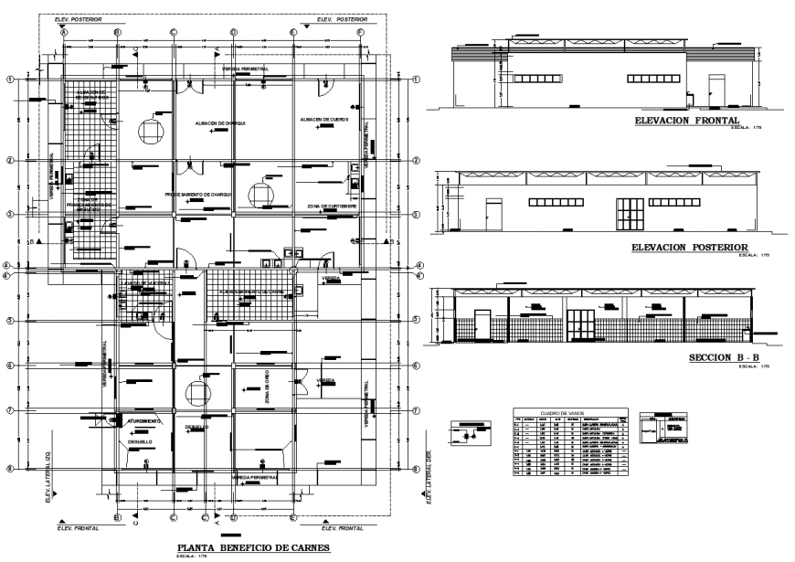
Warehouse structural plan drawing in dwg AutoCAD file.
Description
Warehouse structural plan drawing in dwg AutoCAD file. Top view plan of the warehouse with detail text and dimensions. Front elevation, side elevation, sectional elevation of the warehouse with dimensions.
Uploaded by:
Eiz
Luna
