Single-story health post house, working drawing in dwg file.
Description
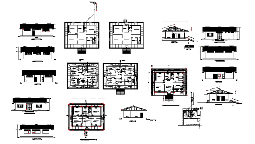
Single-story health post house, working drawing in dwg file. detail drawing of porticos details, beams structure drawing , house plan , wiring details, all side elevation and section detail drawing .
Uploaded by:
Eiz
Luna

