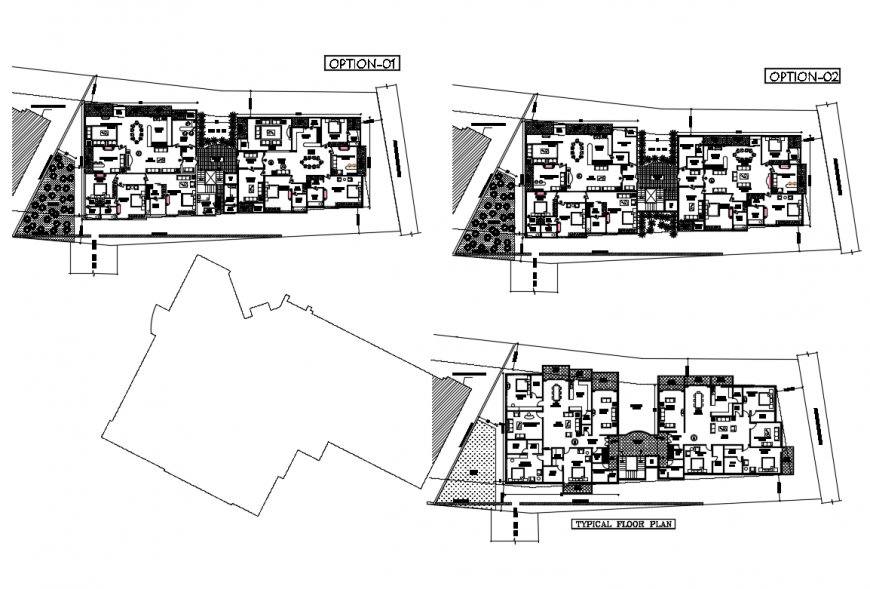
Typical floor plan layout details of twin bungalow cad drawing details dwg file
Description
Typical floor plan layout details of twin bungalow cad drawing details that includes a detailed view of main entry gate, mini garden, car parking view, main entry house door, drawing room, living room, family hall, kitchen, dining area, indoor staircases, laundry area, balcony, bedroom, master bedroom, toilets and bathroom, indoor doors, furniture details and much more of bungalow details.
Uploaded by:
Eiz
Luna
