Single family dwelling house site plan details dwg file
Description
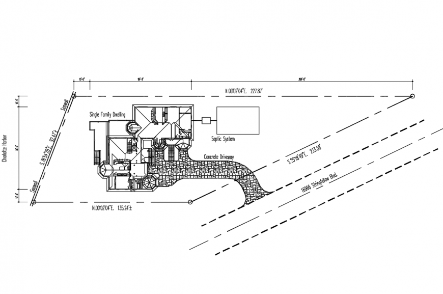
Single family dwelling house site plan details that includes a detailed view of road name and numbers details, saptic system details, concerte drive way details, dimensions details, single flow road and much more of house site plan details.
Uploaded by:
Eiz
Luna

