LOGIN
HOME
CATEGORIES
UPLOAD FILE
PRICING
HOUSE PLAN
ABOUT US
CONTACT US
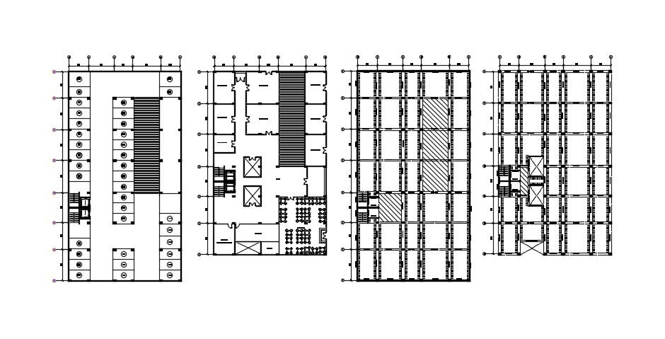
Furniture Structure Design In AutoCAD File
Home
Categories
Structure
Footing Detail
Furniture Structure Design In AutoCAD File
Uploaded by:
Priyanka
Patel
View Profile
View Profile
Description
Furniture Structure Design In AutoCAD File which shows foundation details, Steel Frame detail, Column detail, Neam Detail.
File Type:
DWG
File Size:
368 KB
Category::
Structure
Sub Category::
Footing Detail
type:
Gold
Uploaded by:
Priyanka
Patel
View Profile
Download
Add to libary
find Latest
Related
Files