Insert plate type section autocad file
Description
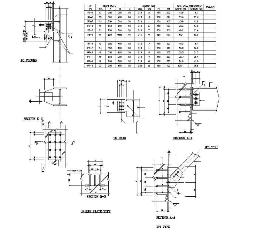
Insert plate type section autocad file, section A-A’ detail, section B-B’ detail, section C-C’ detail, section D-D’ detail, cross section lines detail, hatching detail, thickness detail, reinforcement detail, nut bolt detail, schedule detail, not to scale detail, etc.
Uploaded by:
Eiz
Luna

