House foundation and structure detail dwg file
Description
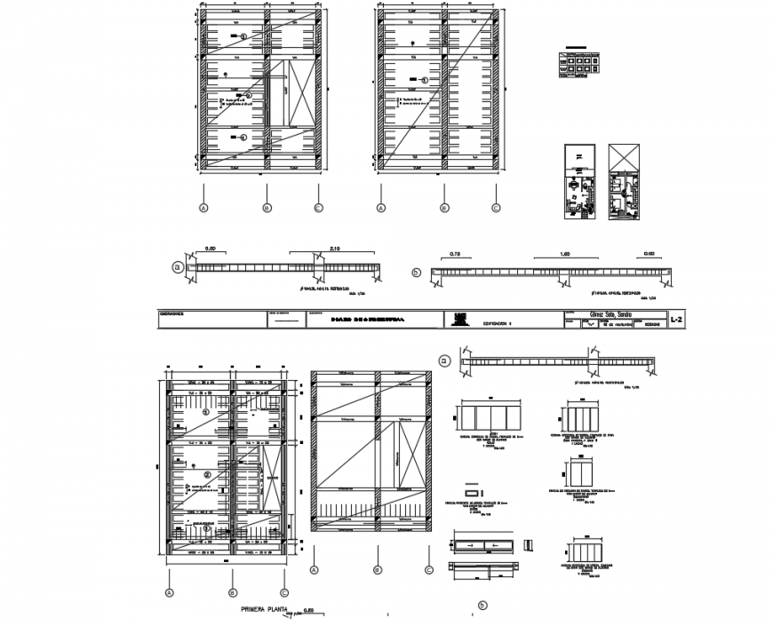
House foundation and structure detail dwg file. The layout plan with cut-out detail, slab detail, dimesion detail, naming detail and much more in autocad format.
Uploaded by:
Eiz
Luna
House foundation and structure detail dwg file. The layout plan with cut-out detail, slab detail, dimesion detail, naming detail and much more in autocad format.
Uploaded by:
Luna