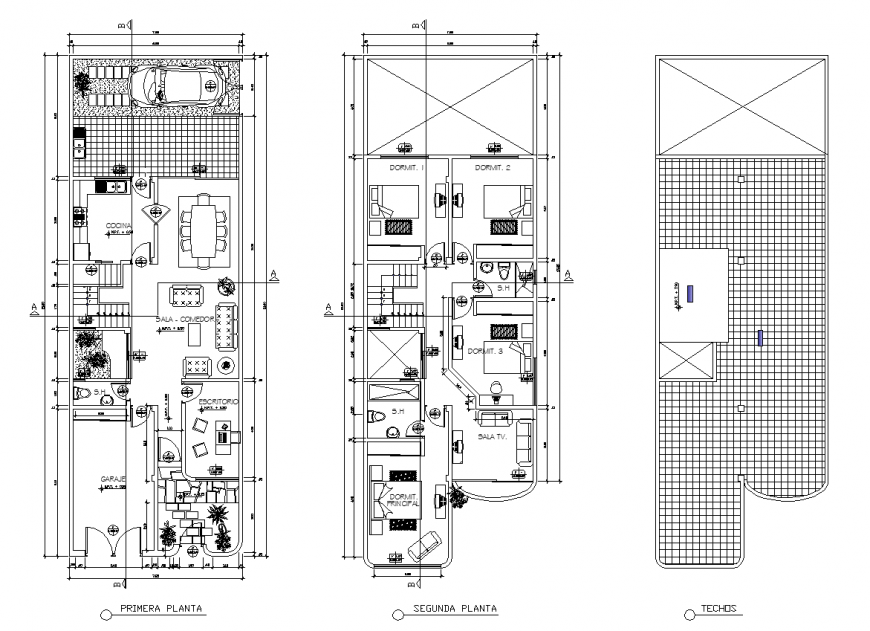
Two storey row house plan drawing in dwg AutoCAD file.
Description
Two storey row house plan drawing in dwg AutoCAD file. This drawing includes the interior furniture layout plan of the ground and second floor of the row house. Floor layout plan of the ground floor. The ground floor plan with kitchen, dining, living room, office area. Second floor layout includes four bedroom and a family room with detail dimensions.
Uploaded by:
Eiz
Luna

