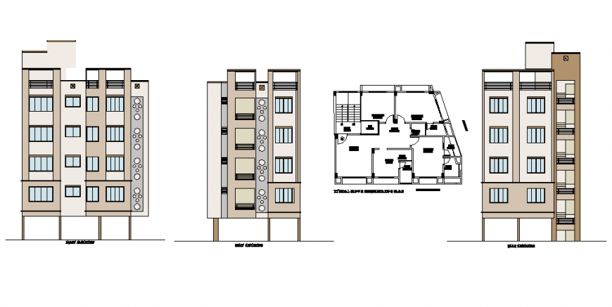
G+4 floor apartment plan and elevation in dwg file.
Description
G+4 floor apartment plan and elevation in dwg file. detail drawing of G+4 floor apartment plan and elevation, plan detail with descriptions, glass door and window details, balcony details, cladding detail in elevation.
Uploaded by:
Eiz
Luna

