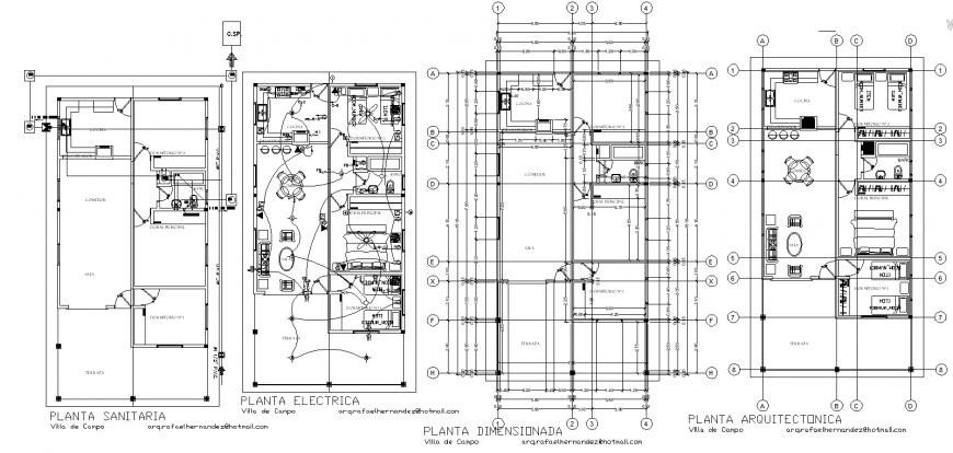
Row house detail layout plan drawing in dwg AutoCAD file.
Description
Row house detail layout plan drawing in dwg AutoCAD file. Furniture layout plan, sanitary block layout plan with detail dimensions, detail dimensions of the plan with section line, electrical layout plan with light and switchboard indications.
Uploaded by:
Eiz
Luna

