Airport parking system plan autocad file
Description
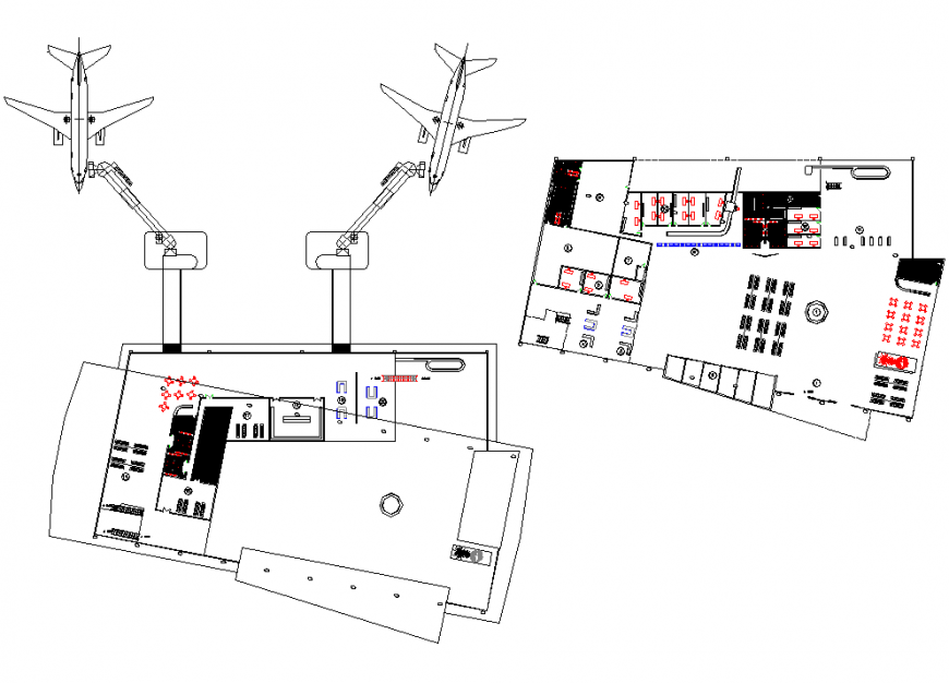
Airport parking system plan autocad file, top elevation detail, wings detail, furniture detail in door, window, table and chair detail, brick wall detail, flooring detail, projection detail, main circle detail, numbering detail, not to scale detail, etc.
Uploaded by:
Eiz
Luna

