Deck house plan drawing in dwg file.
Description
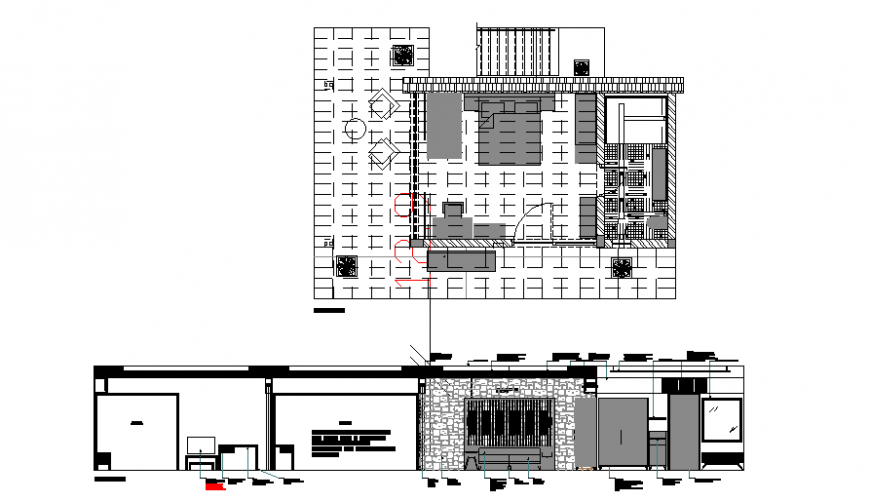
Deck house plan drawing in dwg file. detail drawing of deck house, furniture details, flooring details, section through building, descriptions and etc details.
Uploaded by:
Eiz
Luna
Deck house plan drawing in dwg file. detail drawing of deck house, furniture details, flooring details, section through building, descriptions and etc details.
Uploaded by:
Luna