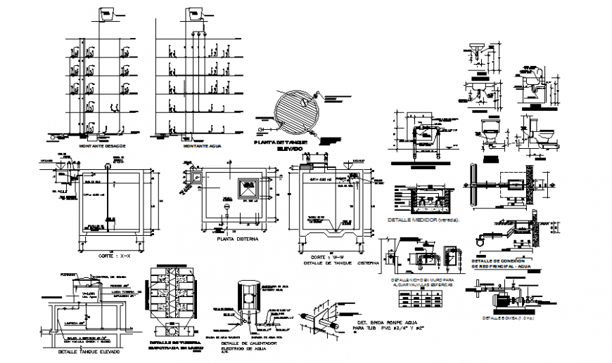
Under ground and overhead water tank drawing in dwg file.
Description
Under ground and overhead water tank drawing in dwg file. detail drawing of water tank , Under ground and overhead water tank drawing, plan , section and construction and joinery details.
Uploaded by:
Eiz
Luna

