The Architecture villa elevation and section villa dwg file
Description
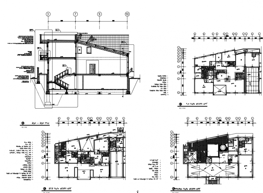
The Architecture villa elevation and section villa dwg file. with morden design drawing of villa, dimesion detail, cut-out detail, door detail, heaching detail, stair detail, naming detail etc.
Uploaded by:
Eiz
Luna

