Multi-purpose room detail elevation, paln and scetion 2d view dwg file
Description
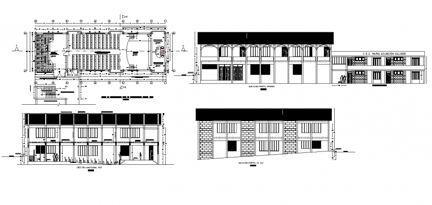
Multi-purpose room detail elevation, paln and scetion 2d view dwg file, front elevation detail, furniture detail, table and chairs detail, door and window detail, bricks masonry detail, rear elevation detail, plan view detail, hidden line detail, floor level detail, section line detail, section B-B' detail, cut out dteail, staircase detail, dimension detail, numbering detail, sanitary toilet detail, etc.
Uploaded by:
Eiz
Luna

