Group of penthouse working drawing in dwg AutoCAD file.
Description
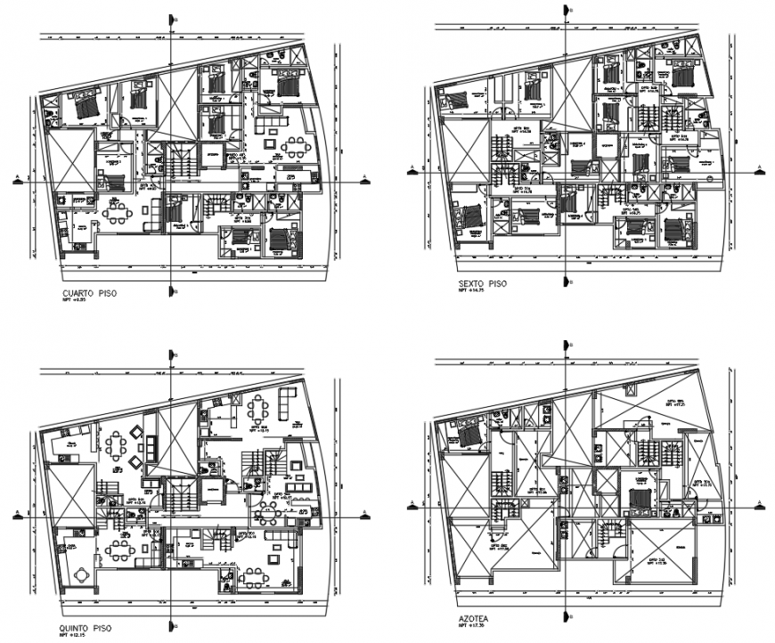
Group of penthouse working drawing in dwg AutoCAD file. The top view furniture layout plan. This drawing includes the fourth, fifth, and sixth floor plan of the penthouse with detail furniture layout with detail dimensions and text. Top floor with roof detail plan layout with dimensions and text.
Uploaded by:
Eiz
Luna

