A Restaurant planning autocad file

A Restaurant planning autocad file
Profile

Uploaded by:

Eiz

Luna

Description

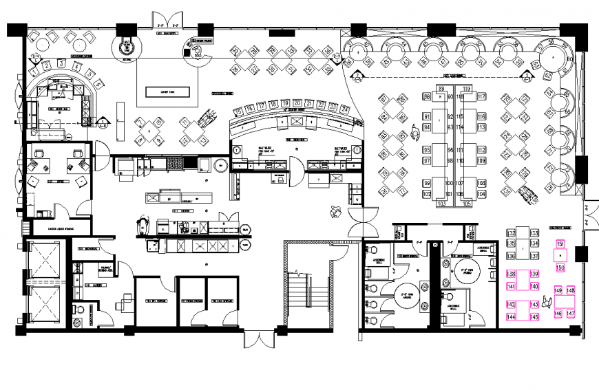
A Restaurant planning autocad file, dimension detail, naming detail, furniture detail in the door, window, table, chair, cub board and drawer detail, stair detail, numbering detail, brick wall detail, flooring detail, toilet detail in sink and water closed detail, column detail, etc.

Profile

Uploaded by:

Eiz

Luna

find Latest

Related Files