Villa interior design working plan layout drawing in dwg AutoCAD file.
Description
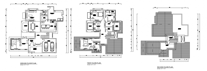
Villa interior design working plan layout drawing in dwg AutoCAD file. This drawing includes the ground floor furniture layout plan with dimensions, first floor furniture layout with 2 bedroom family room, dressing room with dressing area and a wardrobe room, and a kitchen, second floor plan with roof detail.
Uploaded by:
Eiz
Luna

