Reinforced concrete bridge constructive structure details dwg file
Description
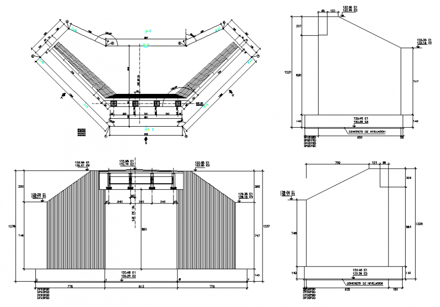
Reinforced concrete bridge constructive structure details that includes a detailed view of detail of the remate (above alero), parapet detail, detail of the parapet and the garnish, reinforced concrete posts, galvanized steel sheet defense, detail of the garnish, detail of the board, lid detail, list of rods, generalities details, dimensions details, specifications details,materials details, welding, concrete details, reinforcing steel, construction procedures, parapet, pilaster, garrison, elevation and section details and much more of bridge details.
Uploaded by:
Eiz
Luna

