Internment men and dicrote bed room planning detail dwg file
Description
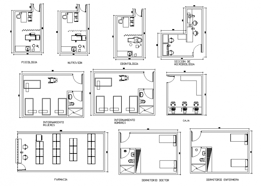
Internment men and dicrote bed room planning detail dwg file, dimension detail, naming detail, furniture detail in door, window, table and chair detail, cut out detail, toilet detail in sink and water closed detail, brick wall detail, flooring detail, not to scale detail, etc.
Uploaded by:
Eiz
Luna

