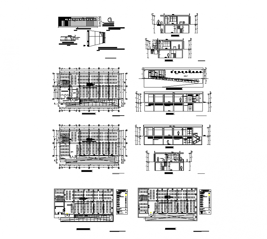
Factory building structure detail plan and section 2d view layout dwg file
Description
Factory building structure detail plan and section 2d view layout dwg file, section line detail, floor level detail, dimension detail, door and window detail, furniture detail, machinery detail, numbering detail, landscaping trees detail, people detail, specification detail, wall and flooring detail, staircase detail, riser and thread detail, section line detail, parking space detail, section detail, etc.
Uploaded by:
Eiz
Luna

