The layout plan Health center detail, Autocad format
Description
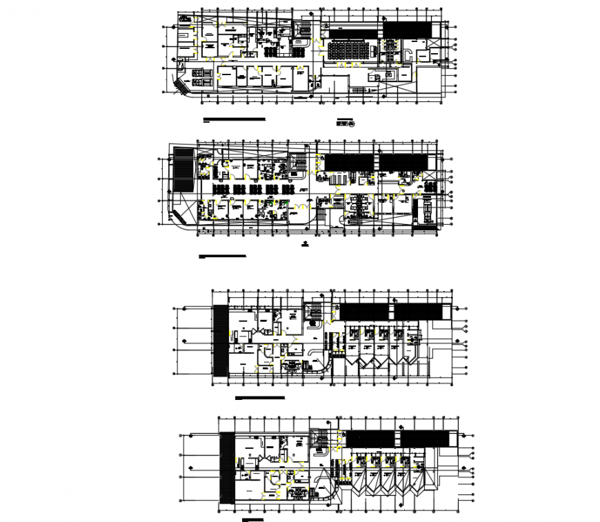
The layout plan Health center detail dwg file in autocad format. The Architecture Project of health center, welcome entry,reception and consultancy room, also have detailing about first floor plan, second floor plan along of furniture detailing etc.
Uploaded by:
Eiz
Luna

