Plan and section working commercial building detail dwg file
Description
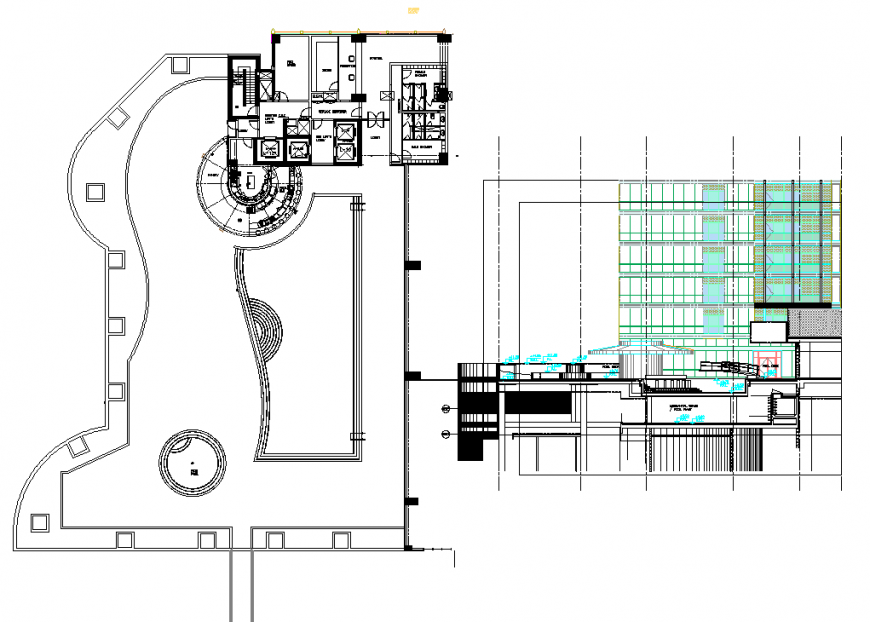
Plan and section working commercial building detail dwg file, dimension detail, naming detail, steel structural detail, spiral stair detail, column section detail, hatching detail, hidden line detail, cut out detail, furniture detail in door, window and chair detail, brick wall detail, flooring detail, not to scale detail, etc.
Uploaded by:
Eiz
Luna

