Section plumbing design detail plan detail dwg file
Description
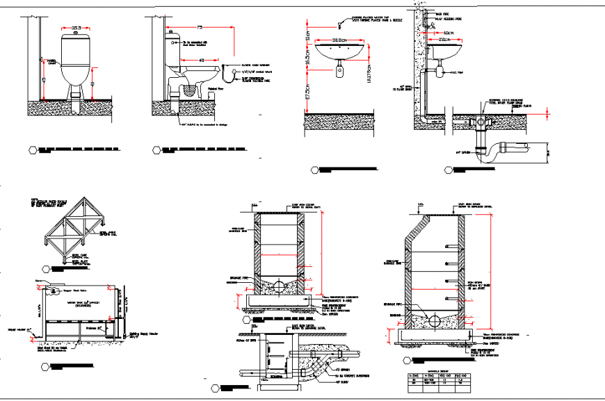
Section plumbing design detail plan detail dwg file, dimension detail, naming detail, hatching detail, main hole section detail, water closed elevation and section detail, brick wall detail, ground floor level detail, reinforcement detail, bolt nut detail, table specification detail, hook section detail, elbow detail, etc.
File Type:
DWG
File Size:
2 MB
Category::
Dwg Cad Blocks
Sub Category::
Autocad Plumbing Fixture Blocks
type:
Gold
Uploaded by:
Eiz
Luna
