Kitchen planning detail autocad file
Description
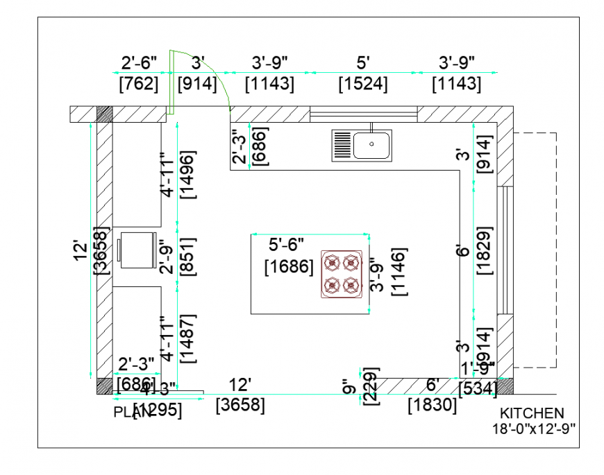
Kitchen planning detail autocad file, dimension detail, naming detail, brick wall detail, flooring detail, column detail, stove detail, hatching detail, sink detail, 18’–0” x 12’-9” kitchen size detail, projection hidden lien detail, not to scale detail, etc.
File Type:
DWG
File Size:
58 KB
Category::
Interior Design
Sub Category::
Bathroom Interior Design
type:
Gold
Uploaded by:
Eiz
Luna
