Electrical drawings and Construction detail dwg file
Description
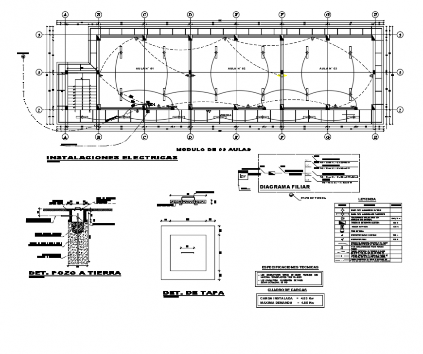
Electrical drawings and Construction detail dwg file. Here the Electrical line diagram design drawing detail, well to the ground detail, naming detail, with labeling, measurements detail etc.
Uploaded by:
Eiz
Luna

