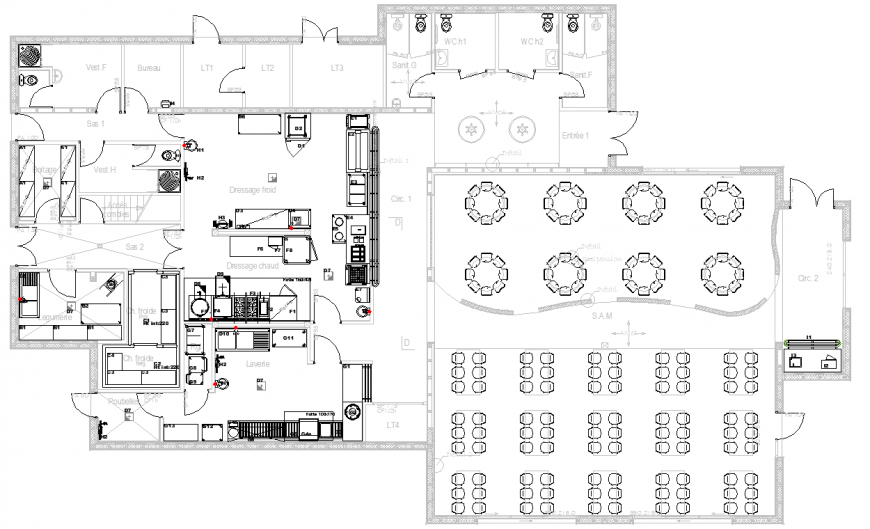
Restaurant top view plan drawing in dwg AutoCAD file.
Description
Restaurant top view plan drawing in dwg AutoCAD file. This drawing includes the top view plan of the restaurant with furniture layout of dining area and kitchen planning having different types of the kitchen and storage area.
Uploaded by:
Eiz
Luna

