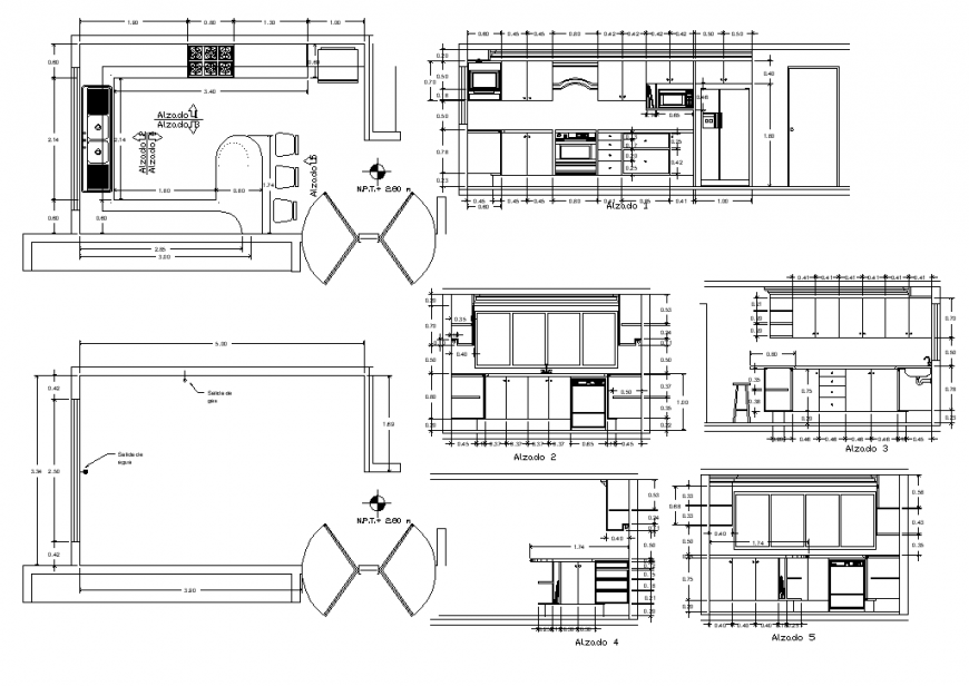
Plan and section of kitchen structure layout file in autocad format
Description
Plan and section of kitchen structure layout file in autocad format, plan view detail, platform detail, dimension detail, furniture detail, wash-basin detail, refrigerator detail, wall and flooring detail, section detail, cabinets and shelves detail, oven detail, rack detail, section line detail, etc.
Uploaded by:
Eiz
Luna

