Office building plan structure 2d view layout file in autocad file
Description
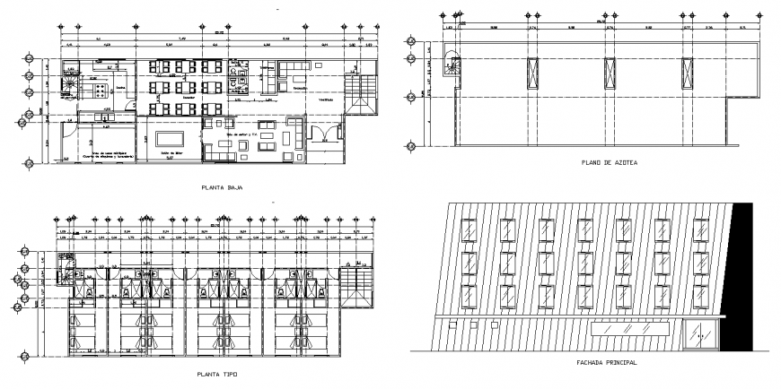
Office building plan structure 2d view layout file in autocad file, plan view detail, furniture detail, numbering detail, dimension detail, staircase detail, table and chair detail, hidden line detail, door and window detail, sofa-set detail, sanitary toilet detail, terrace plan detail, floor level detail, RCC structure detail, etc.
Uploaded by:
Eiz
Luna

