Commercial Building Plan and Elevation With DWG File
Description
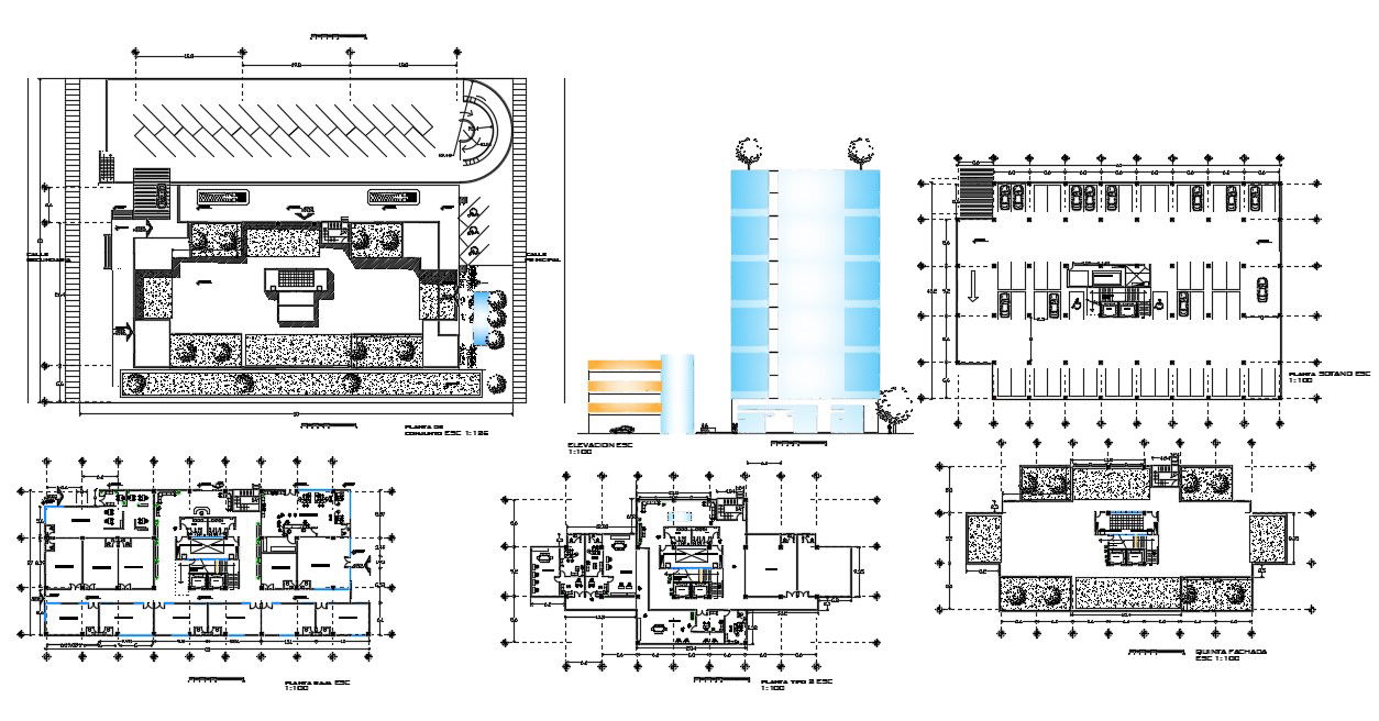
Commercial Building Plan and Elevation With DWG File.this shows basement plan include car parking,left area and staircase detail,Ground Floor plan shows 13 Rentable Area,First Floor plan in four office, download file,
Uploaded by:
helly
panchal

