Office building sections and floor plan layout cad drawing details dwg file
Description
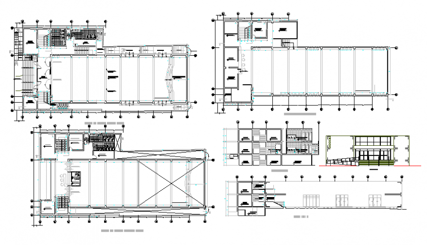
Office building sections and floor plan layout cad drawing details that includes a detailed view of flooring view, doors and windows view, staircase sectional details, balcony view, wall sections and dimensions details, basement car parking floor, tree view, wall design with reception area, waiting area, cabin, bottom false ceiling, computer lab, bottom of grid ceiling, counselling room and library, conference room, manager cabin, meeting room, cleaning department, departmental office, smoking area, head offices, accountant rooms, pantry, kitchen, dining area, server room, meeting room, pantry and much more of office project.
Uploaded by:
Eiz
Luna

