Elevated tank constructive structure and plumbing details dwg file
Description
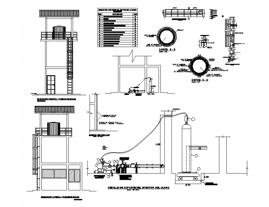
Elevated tank constructive structure and plumbing details that includes a detailed view of that includes a detailed view of hp booster electrobomba, injector, injector support, valve ball, manometer from (glycerine), pvc diffuser, clamp of round iron, fixing bolts, chlorine bottle, anchorage hook, detail of chlorine elector support, front elevation - elevated tank, lateral elevation - elevated tank, concrete slab, armed and much more of tank details.
Uploaded by:
Eiz
Luna

