Nave industrial plant architecture layout plan details dwg file
Description
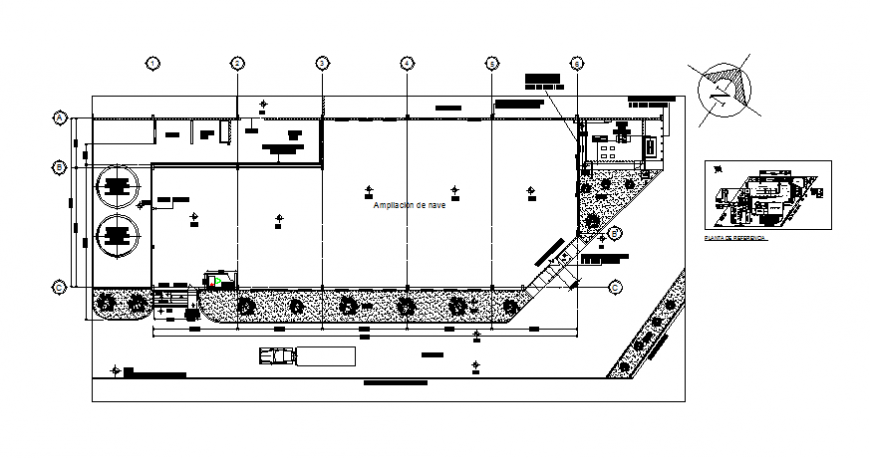
Nave industrial plant architecture layout plan details that includes a detailed view of main entry gate, security check area, garden area, loading area details, parking area, machinery details, processing plant details, administration office details, mess area details, dimensions details, departmental processing plants details, cotrol room, labour area, kitchen, dining area, departmental offices, csr department and much more of industrial plant details.
Uploaded by:
Eiz
Luna
