Housing structural elevation and section layout file
Description
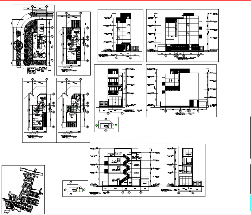
Housing structural elevation and section layout file, centre line plan detail, leveling detail, dimension detail, naming detail, front elevation detail, side elevation detail, landscaping detail in tree and plant detail, stair section detail, section A-A’ detail, section B-B’ detail, furniture detail in door, window, bed, cub board and drawer detail, not to scale detail etc.
Uploaded by:
Eiz
Luna

