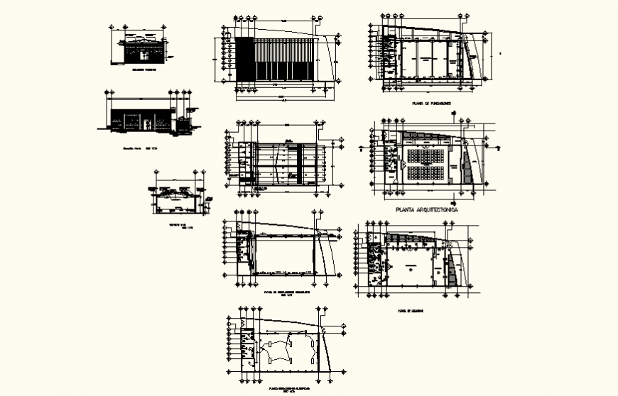
Multiplex theater building detail plan and electrical fittings 2d view dwg file
Description
Multiplex theater building detail plan and electrical fittings 2d view dwg file, plan view detail, dimension detail, front elevation detail, double door detail, section detail, wall and flooring detail, hidden line detail, seats and chair detail, hatching detail, numbering detail, electrical wire detail, rear elevation detail, sanitary toilet detail, section line detail, etc.
Uploaded by:
Eiz
Luna

