Garage small store elevation, section and plan details dwg file
Description
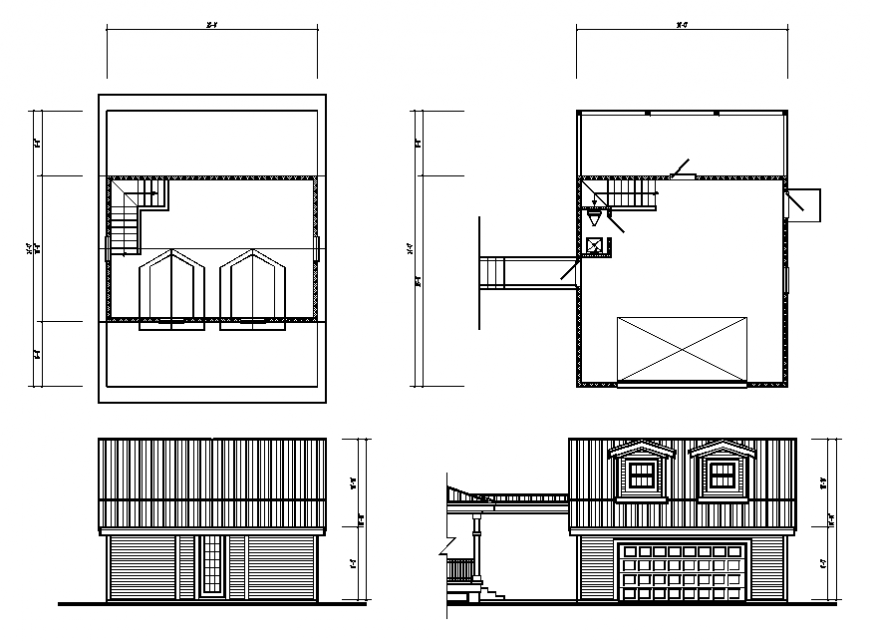
Garage small store elevation, section and plan details that includes a detailed view of doors and windows view, staircase view, balcony view, wall design, dimensions, roof or terrace view and much more of garage details.
File Type:
DWG
File Size:
41 KB
Category::
Interior Design
Sub Category::
Showroom & Shop Interior
type:
Gold
Uploaded by:
Eiz
Luna

