Modern kitchen sectional and interior details dwg file
Description
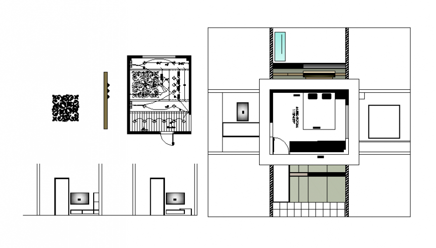
Modern kitchen sectional and interior details that includes a detailed view of all sided sectional details with structure, interior details, equipment details, electrical layout plan details, furniture details, dining area, cooking area, platform details, ceiling details, chimney and exhaustion details and much more of kitchen details.
Uploaded by:
Eiz
Luna

