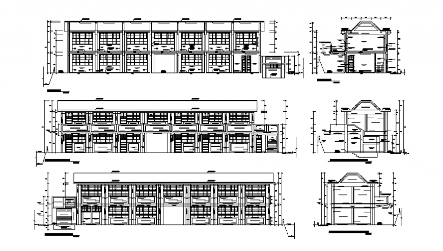
Two-story school building all sided elevation and sectional details dwg file
Description
Two-story school building all sided elevation and sectional details that includes a detailed view of facade back and side elevations and section details with flooring view, doors and windows view, staircase sectional details, balcony view, wall sections and dimensions details and much more of school project.
Uploaded by:
Eiz
Luna

