Foundation planning commercial building detail dwg file
Description
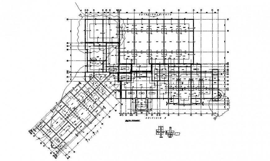
Foundation planning commercial building detail dwg file, centre line plan detail, dimension detail, reinforcement detail, bolt nut detail, concrete mortar detail, hidden line detail, hatching detail, foundation section detail, not to scale detail, etc.
Uploaded by:
Eiz
Luna

