Villa section plan layout file
Description
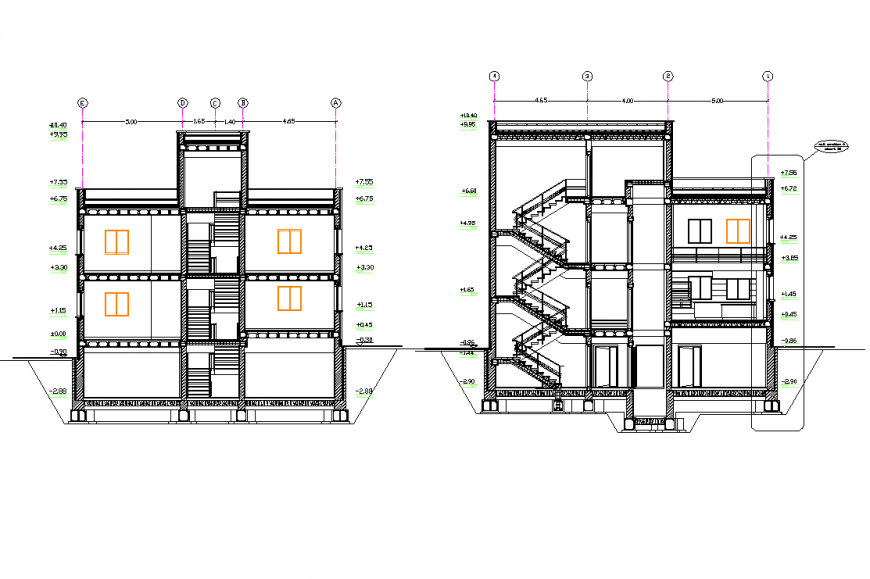
Villa section plan layout file, centre line plan detail, dimension detail, naming detail, stair section detail, handrail detail, leveling detail, furniture detail in door and window detail, foundation section detail, concrete mortar detail, not to scale detail, brick wall detail, etc.
Uploaded by:
Eiz
Luna

