All floor house toilet plan and section autocad file
Description
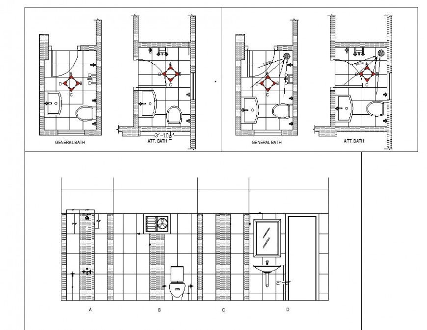
All floor house toilet plan and section autocad file, section A-A’ detail, section B-B’ detail, section C-C’ detail, section D-D’ detail, brick wall detail, flooring detail, furniture detail in door and vent detail, wall tiles detail, pluming design in water closed and sink detail, dark and light wall tiles detail, not to scale detail, etc.
File Type:
DWG
File Size:
102 KB
Category::
Interior Design
Sub Category::
Bathroom Interior Design
type:
Gold
Uploaded by:
Eiz
Luna

