Metal fence detail drawing in dwg AutoCAD file.
Description
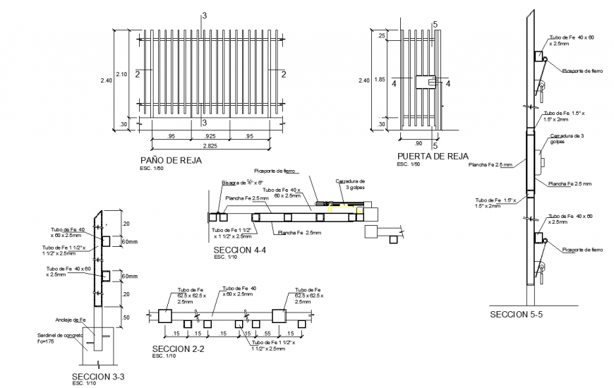
Metal fence detail drawing in dwg AutoCAD file. This drawing includes the front elevation of the metal fence, side section detail with dimension, top cut section detail, metal square pipe with dimension 60mm x 25mm. Metal gate detail drawing with front elevation and side section detail with dimensions.
Uploaded by:
Eiz
Luna

