Apartment elevation and section drawing in dwg file.
Description
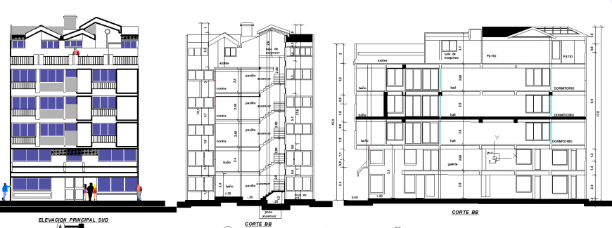
Apartment elevation and section drawing in dwg file. detail drawing of Apartment elevation and section, section through the staircase , column and beam detail, elevation with glass door and window, railing details with dimensions.
Uploaded by:
Eiz
Luna

