Detail structure plan and section 2d view layout file in dwg file
Description
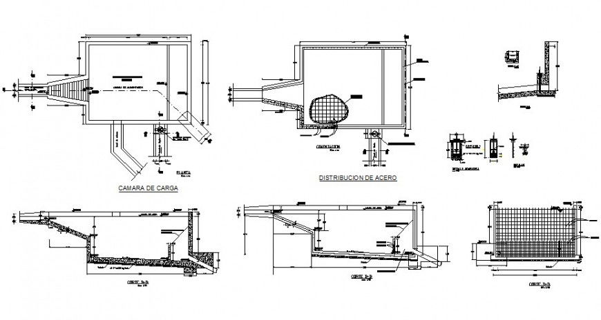
Detail structure plan and section 2d view layout file in dwg file, plan view detail, reinforcement detail in tension and compression zone, stirrups detail, dimension detail, concrete bed detail, hatching detail, hidden line detail, section line detail, concrete masonry detail, cut out detai, section A-A'detail, section B-B'detail, section C-C' detail, slope detail, scale detail, etc.
Uploaded by:
Eiz
Luna

